IÑIGO
CORNAGO BONAL
architecture urbanism







An active house (rather than a passivhaus) shaped by its inhabitants.
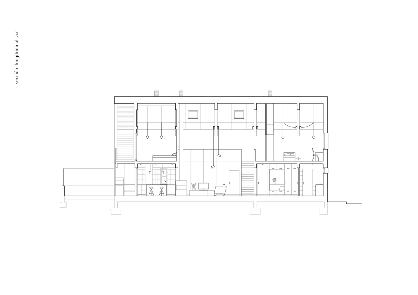
Casa HR is a detached house built in timber for a young growing family in the North of Spain. The house is designed simultaneously as a protective shelter and an inviting open space, both in a social and climatic sense. Through bi-folding shutters and sliding doors, the inhabitants can connect and segregate the different volumes and degrees of publicity and exterior-ness.
︎ Claudia Sánchez + Íñigo Cornago
︎︎︎ Tudela [SP]
︎︎︎ More
Casa HR is a detached house built in timber for a young growing family in the North of Spain. The house is designed simultaneously as a protective shelter and an inviting open space, both in a social and climatic sense. Through bi-folding shutters and sliding doors, the inhabitants can connect and segregate the different volumes and degrees of publicity and exterior-ness.
︎ Claudia Sánchez + Íñigo Cornago
︎︎︎ Tudela [SP]
︎︎︎ More




‘Selb Step by Step’ is a guide to take action in the built environment that proposes a vision for the short and long term future of Selb in relation to broader policies.
Working in synchrony with the EU framework, the proposal sets out three directions for Selb to follow in order to become a social-inclusive and climate-resilient town by 2050: Rewilding, Diversifying, and Decarbonising. To achieve them, it proposes and describes a list of tangible steps towards those objectives in the next decade. These steps are discreet spatial interventions with different scales and scopes that can be implemented progressively, both independently or in combination. Their impact can be measured and assessed through indicators, informing the following steps to achieve the targets best.
︎1st Prize - Europan 16
︎ Urban Toolkit: Claudia Sánchez + Íñigo Cornago
︎︎︎ Selb [GR]
︎︎︎ Watch project summary Video
︎︎︎ More
Working in synchrony with the EU framework, the proposal sets out three directions for Selb to follow in order to become a social-inclusive and climate-resilient town by 2050: Rewilding, Diversifying, and Decarbonising. To achieve them, it proposes and describes a list of tangible steps towards those objectives in the next decade. These steps are discreet spatial interventions with different scales and scopes that can be implemented progressively, both independently or in combination. Their impact can be measured and assessed through indicators, informing the following steps to achieve the targets best.
︎1st Prize - Europan 16
︎ Urban Toolkit: Claudia Sánchez + Íñigo Cornago
︎︎︎ Selb [GR]
︎︎︎ Watch project summary Video
︎︎︎ More


Book chapter that discusses the notion of ‘Open Building’ through its conceptualisations and implementations in the Netherlands since the 1960s until today. It focuses on the place of dwellers’ agency in the development of residential open buildings to investigate the potential of users’ empowerment.
The ‘Open Building’ approach synthesises the principles of Habraken’s theory of ‘Support’ and ‘Infill’ developed as an alternative to post-war mass housing. Through innovations in decision-making and construction technology it promotes user participation and enables flexibility and change. The chapter discusses and compares the cases of Molenvliet, an early Open Building project for the social rental sector, and Superlofts, a series of contemporary ones where the architect and the residents have also become developers. It emphasises the political, and socio-economic context of the Open Building movement and how it has impacted the ability to meet its aims. Although its capacity to disrupt the housing system has remained limited it has expanded housing possibilities in the Netherlands.
︎ Dirk van den Heuvel + Íñigo Cornago Bonal
︎︎︎ Cornago Bonal, I. & van den Heuvel, D., 2022, Housing and the City. Borsi, K., Ekici, D., Hale, J. & Haynes, N. (eds.). 1st Edition ed. London: Routledge - Taylor & Francis Group, p. 130-144 15 p. (Critiques: Critical Studies in Architectural Humanities).
︎︎︎Link to full Chapter (TU Delft Repository)
The ‘Open Building’ approach synthesises the principles of Habraken’s theory of ‘Support’ and ‘Infill’ developed as an alternative to post-war mass housing. Through innovations in decision-making and construction technology it promotes user participation and enables flexibility and change. The chapter discusses and compares the cases of Molenvliet, an early Open Building project for the social rental sector, and Superlofts, a series of contemporary ones where the architect and the residents have also become developers. It emphasises the political, and socio-economic context of the Open Building movement and how it has impacted the ability to meet its aims. Although its capacity to disrupt the housing system has remained limited it has expanded housing possibilities in the Netherlands.
︎ Dirk van den Heuvel + Íñigo Cornago Bonal
︎︎︎ Cornago Bonal, I. & van den Heuvel, D., 2022, Housing and the City. Borsi, K., Ekici, D., Hale, J. & Haynes, N. (eds.). 1st Edition ed. London: Routledge - Taylor & Francis Group, p. 130-144 15 p. (Critiques: Critical Studies in Architectural Humanities).
︎︎︎Link to full Chapter (TU Delft Repository)

An open repository of initiatives enhancing public spaces by bringing people together through food culture
City Cook Book aims to explore how food can be an effective tool to both transform our common spaces into sites for encounter and social interaction, as well as to engage with larger issues that shape our everyday urban life. Through its digital platform and its print-it-yourself publication, City Cook Book intents to visualize this phenomena, reflect upon it and inspire other initiatives
︎ Project: Claudia Sánchez + Íñigo Cornago
Graphic design: Karen -ereslomastumas
Programming: Andrés Sedano
︎ Project funded by Ayudas Creacion INJUVE
︎︎︎ citycookbook.org
City Cook Book aims to explore how food can be an effective tool to both transform our common spaces into sites for encounter and social interaction, as well as to engage with larger issues that shape our everyday urban life. Through its digital platform and its print-it-yourself publication, City Cook Book intents to visualize this phenomena, reflect upon it and inspire other initiatives
︎ Project: Claudia Sánchez + Íñigo Cornago
Graphic design: Karen -ereslomastumas
Programming: Andrés Sedano
︎ Project funded by Ayudas Creacion INJUVE
︎︎︎ citycookbook.org






The film focus on Bimanagar (also known as Life
Insurance Corporation Housing) in Ahmedabad, one of the most significant yet
overlooked projects of Indian architect BV Doshi. It brings together the
perspectives and narratives of the architect of the project and its current
inhabitants, some original homeowners while other recent newcomers.
Through a series of interviews and conversations, it presents their views, recollections, ambitions, hopes, and fears around the estate's past, present, and future. While Doshi presents his goal of integrating physical and social structures, creating a township with a sense of community, by integrating various user income groups and allowing and fostering change over time; various inhabitants describe their experiences growing in the estate, the negotiations with neighbours to extend their homes and the growing pressure to redevelop the site in response of new urban regulations.
︎ Project: Íñigo Cornago + Christoph Lueder
Direction & Edition: Íñigo Cornago
Filmining & Interviews: Ruju Joshi
︎︎︎ Film: 12 ’10”
︎︎︎ Watch Video
Through a series of interviews and conversations, it presents their views, recollections, ambitions, hopes, and fears around the estate's past, present, and future. While Doshi presents his goal of integrating physical and social structures, creating a township with a sense of community, by integrating various user income groups and allowing and fostering change over time; various inhabitants describe their experiences growing in the estate, the negotiations with neighbours to extend their homes and the growing pressure to redevelop the site in response of new urban regulations.
︎ Project: Íñigo Cornago + Christoph Lueder
Direction & Edition: Íñigo Cornago
Filmining & Interviews: Ruju Joshi
︎︎︎ Film: 12 ’10”
︎︎︎ Watch Video